Information
As a student architect at SETU Waterford, Ireland, I pride myself on adaptability and commitment to excellence. I enjoy working on Public Spaces, Social Housing, and Adaptive Reuse. Here's more information about my approach.
In my design process, I prioritize meeting the build requirements, then incorporate elements from the site and my own creativity to create an elegant and functional space. My approach to working with clients is focused on understanding their vision and translating it into effective and practical architectural proposals.










Presentation Boards
The Portal Bridge - Competition Finalist



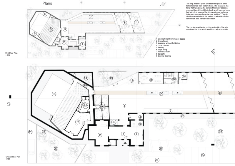
The Station Theatre - Adaptive Re-use






The 7 Building - Social Housing









Project Highlights
I'm particularly proud of the portal bridge project, my first competition shortlist, and my station theater project, where I created a highly usable and enjoyable space. Being a student architect influences my design style by fostering creativity and addressing a broad range of topics and restrictions in each project.
Create Your Own Website With Webador